PERROY

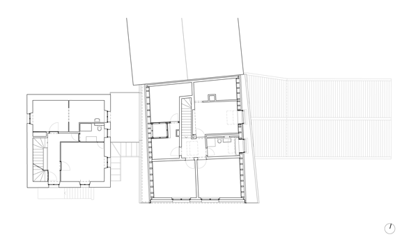
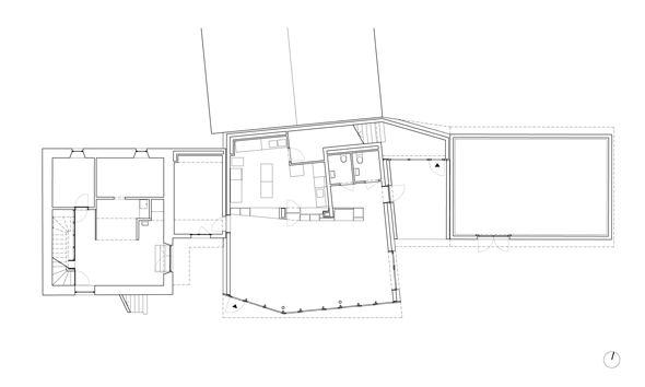
Création d’une oenothèque et de deux logements

Rue de la Poste 3, Perroy, 2013 - 2015

www.vinitoscani.ch

Photos : © Alan Hasoo
Perroy Perroy Perroy Perroy Perroy Perroy Perroy Perroy Perroy Perroy Perroy Perroy Perroy Perroy Perroy Perroy Perroy