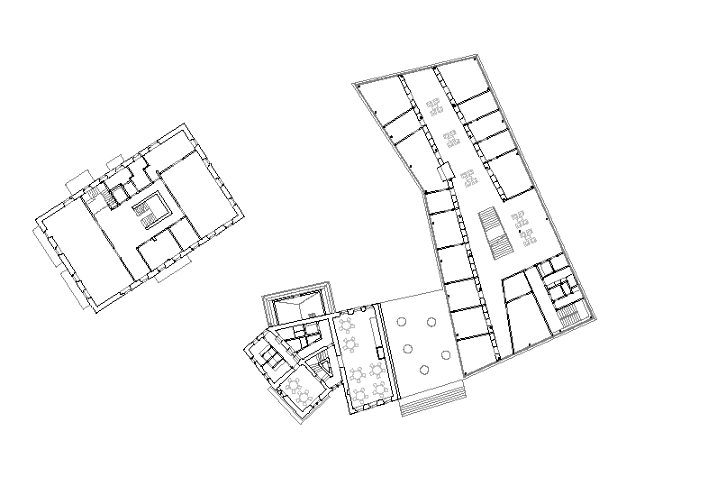
AURIGA

Restructuration et extension de l'administration communale

Route de Cossonay 40, Prilly, 2008

Mandat d'études parallèles sur présélection - 3e prix

Images : © Marco De Francesco
Auriga Auriga Auriga Auriga