EGLANTINE

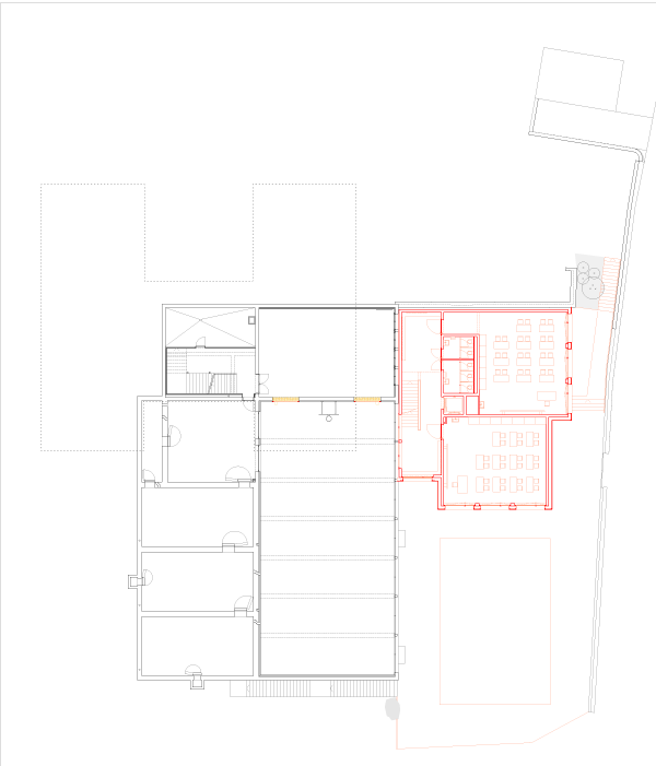
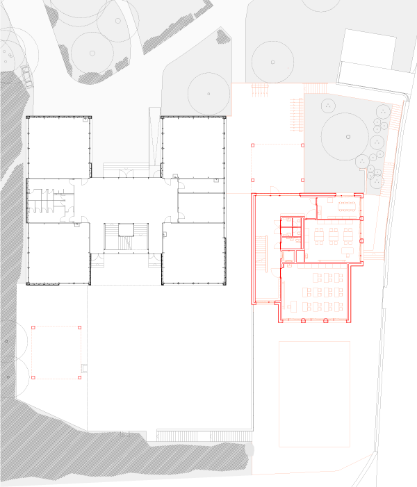
Projet pour l'extension du collège de l'Eglantine

Création de 5 classes et d'un APEMS

Chemin de Messidor 3, 1006 Lausanne, 2018

Réalisé en entreprise totale, architecte d'exécution TD_ARCHITECTES

Images : © Bildbauer
Eglantine Eglantine Eglantine Eglantine Eglantine Eglantine