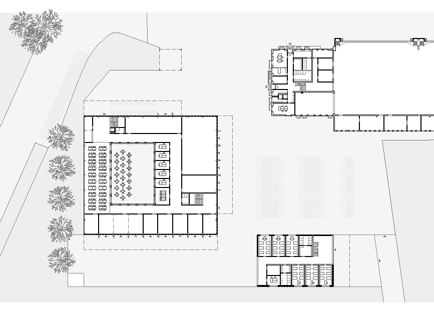
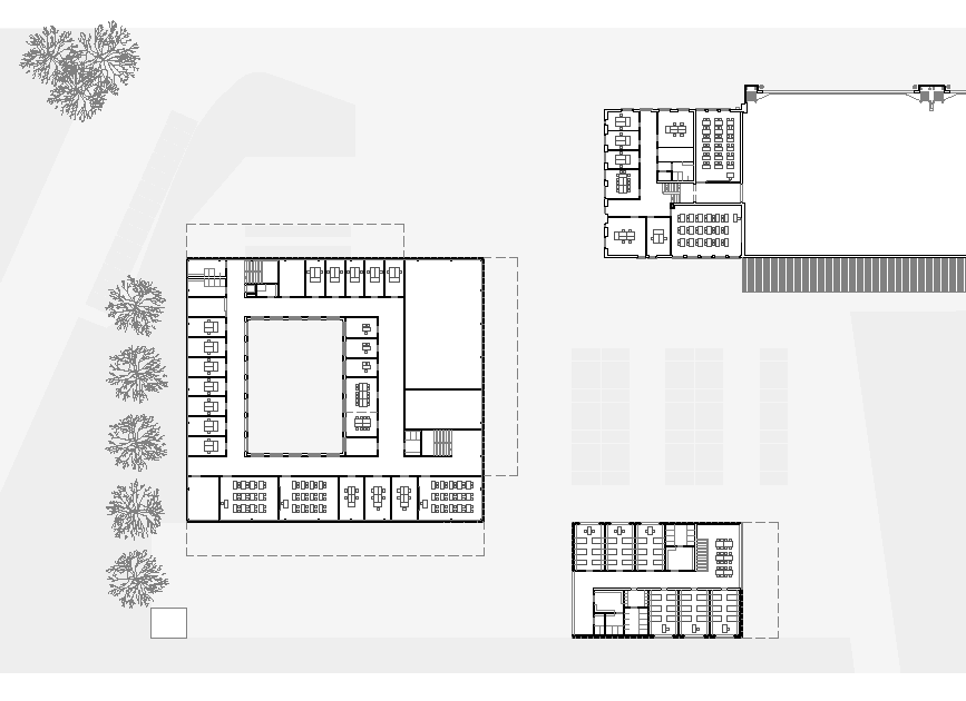
"A MOI"

Adaptation des infrastructures d’instruction

Base aérienne, Payerne, 2011

Concours d’architecture à un degré en procédure ouverte - 5e prix

"A MOI" "A MOI" "A MOI" "A MOI"