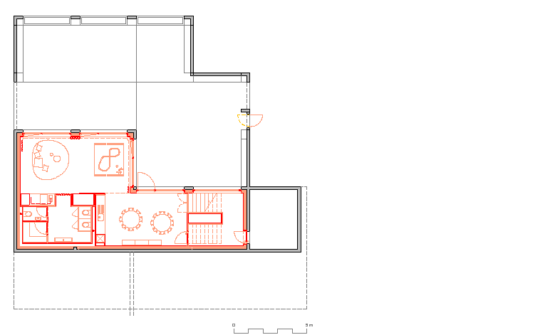
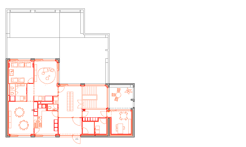
ESPLANADE

Aménagement d'une garderie nurserie dans une structure béton existante et restée inoccupée

Quartier de l'Esplanade

Cornes-Morel 47, la Chaux-de-Fonds, 2010 - 2011

Photos : © Alan Hasoo
Esplanade Esplanade Esplanade Esplanade Esplanade Esplanade Esplanade Esplanade Esplanade Esplanade Esplanade Esplanade Esplanade Esplanade Esplanade