NB.ARCH
RÉALISATIONS
▼
CHESALLES
ROVÉRÉAZ
SAN NICOLÒ
GRÉSY
ROSIÈRE
FOYER DE LA CLOCHATTE
NEPPENS
COUDRETTE
SECRÉTAN
SERVAN
EGLANTINE
MARTEREY
ROLLE
FICHES NORD
PEUPLIERS
FROIDEVILLE
LA RIPPE II
PERRÉAZ
PERROY
TOLOCHENAZ
ESPLANADE II
SUGNENS
FC BOVERESSES
ESPLANADE
SERVAN
MARC DUFOUR
BIÈRE
JORAT
DOMPIERRE
LE CERF
LA RIPPE
GRANDVAUX
LA TUFFIÈRE
MONT D'OR
EPALINGES
GILLARENS
COLLECTION DE L'ART BRUT
SCÉNOGRAPHIES
▼
GASTON DUFOUR - RHINOCÉROS FÉROCE
CARLO ZINELLI
ARCHITECTURES
TASSINI
ROBILLARD
L'ART BRUT DANS LE MONDE
SCHULTHESS
VÉHICULES
BARTLETT
ALOÏSE
GUO FENGYI
NANNETTI
BOUABRÉ
ATAA OKO
JAPON
RICHARD GREAVES
CREATIVE GROWTH ART CENTER
LE ROYAUME DE NEK CHAND
SANTORO
BOUTIQUES
▼
CHEZ LAURÈNE
ARSENIC
GHISÒ STAND
GHISÒ BOUTIQUE
GHISÒ SHOWROOM
SORTIE DE SECOURS
ROUGE DE HONTE
CONCOURS
▼
BIELA VILLA DISTRICT
BUSSIGNY-OUEST
BEAUREGARD-DESSUS
BULLE
POMPAPLES
GRAND HÔTEL DU PARC
SYLVESTRE
HOPE II
SAINTE CROIX
AVERELL
CALLISTO
"A MOI"
LA QUINTA STELLA
L'EAU ROUGE
SO LONG MARIANNE
AURIGA
HOWARD ROARK
ÉQUIPE
CONTACT
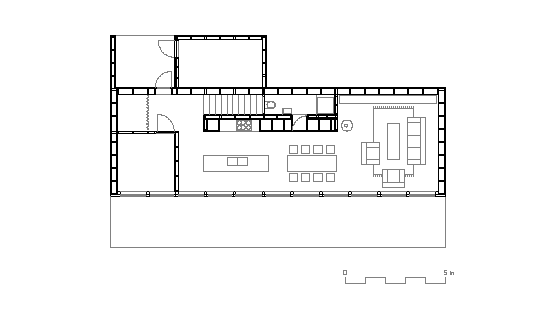
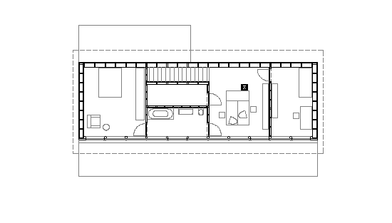
JORAT
Maison passive
Route du Jorat 42D, Lausanne, 2007 - 2009
Photos : © Thomas Jantscher