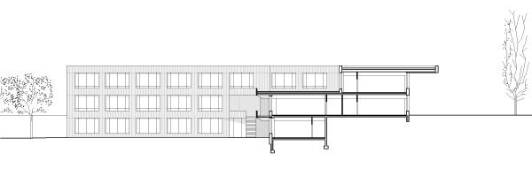
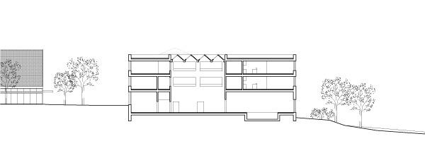
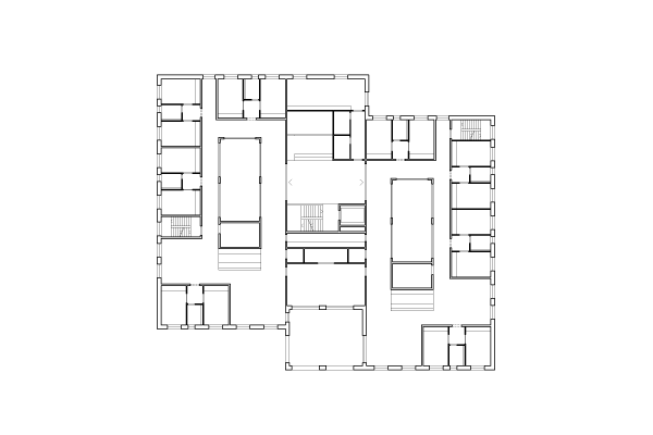
HOPE II

L’Espérance, institution spécialisée pour personnes handicapées

Création d’une nouvelle structure de vie et transformation des ateliers

Etoy, 2015

Concours de projets d’architecture et d’ingénierie en procédure ouverte - 2ème prix

Hope II Hope II Hope II Hope II Hope II Hope II Hope II Hope II Hope II Hope II