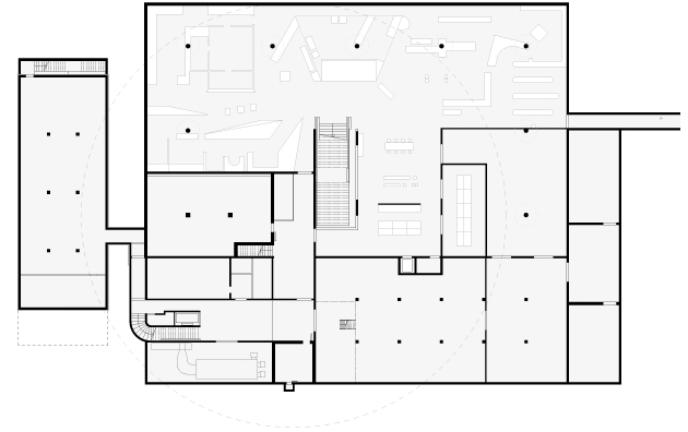
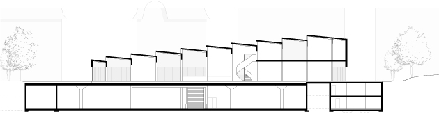
BULLE

Maison du patrimoine et de la culture

Bulle, 2020

Concours d'architecture à un degré en procédure sélective - 3ème rang / 3ème prix

En collaboration avec AFF Architekten, Berlin/Lausanne

Images : © Sebastian Lippock
Bulle Bulle Bulle Bulle Bulle Bulle Bulle Bulle