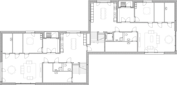
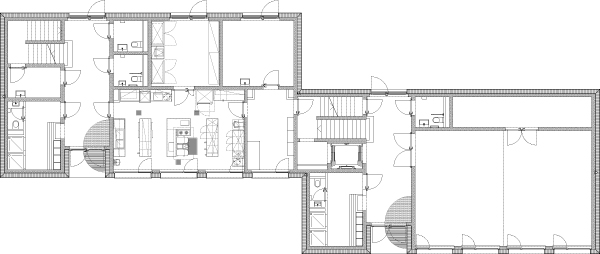
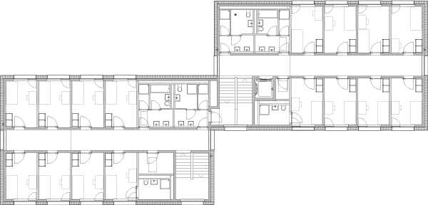
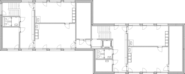
FOYER DE LA CLOCHATTE

Reconstruction des lieux de vie et de l'école d'enseignement spécialisé

Le Mont-sur-Lausanne, 2013-2021

Photos : © Matthieu Croizier
Foyer de la Clochatte Foyer de la Clochatte Foyer de la Clochatte Foyer de la Clochatte Foyer de la Clochatte Foyer de la Clochatte Foyer de la Clochatte Foyer de la Clochatte Foyer de la Clochatte Foyer de la Clochatte Foyer de la Clochatte Foyer de la Clochatte Foyer de la Clochatte Foyer de la Clochatte Foyer de la Clochatte Foyer de la Clochatte Foyer de la Clochatte Foyer de la Clochatte Foyer de la Clochatte Foyer de la Clochatte Foyer de la Clochatte Foyer de la Clochatte Foyer de la Clochatte Foyer de la Clochatte Foyer de la Clochatte Foyer de la Clochatte Foyer de la Clochatte Foyer de la Clochatte